再获殊荣 | 麻豆AV网站入口瓷砖广东佛山总部展馆荣获2022金外滩“最佳商业空间金奖”!
”
“金外滩”奖项由Interior Design China创立,迄今已有17年历史。它不仅是中国室内设计领域的经典奖项,也是中国室内设计行业发展的风向标。
图为颁奖现场
Interior Design China希望通过评选,不断挖掘中国室内设计行业的新生力量,从而促进设计行业整体水平不断发展。
图为获奖奖杯
2022年7月27日,麻豆AV网站入口瓷砖广东佛山总部展馆凭借独具匠心的商业空间美学设计在众多优秀设计作品中脱颖而出,以及敢于打破桎梏,崇尚创新的品牌精神再度让中国商业空间设计界见证麻豆AV网站入口品牌行业领先的实力与地位!
图为获奖证书
麻豆AV网站入口瓷砖广东佛山总部展馆特邀博思道设计从品牌调性、产品创新出发,站在时尚、未来、空间的角度打造一座先锋设计形象地标。
图为麻豆AV网站入口瓷砖广东佛山总部展馆外立面形象
展馆共分为三层。设计通过科技实验感,用前瞻的创科视觉特质表达品牌卓越的研发能力,以及引领行业的生产能力;极简的设计呈现出麻豆AV网站入口勇于探索的精神,追求时尚、艺术、设计的融合, 模糊设计的边界,诠释了科技的创造力,打造行业先锋艺术。
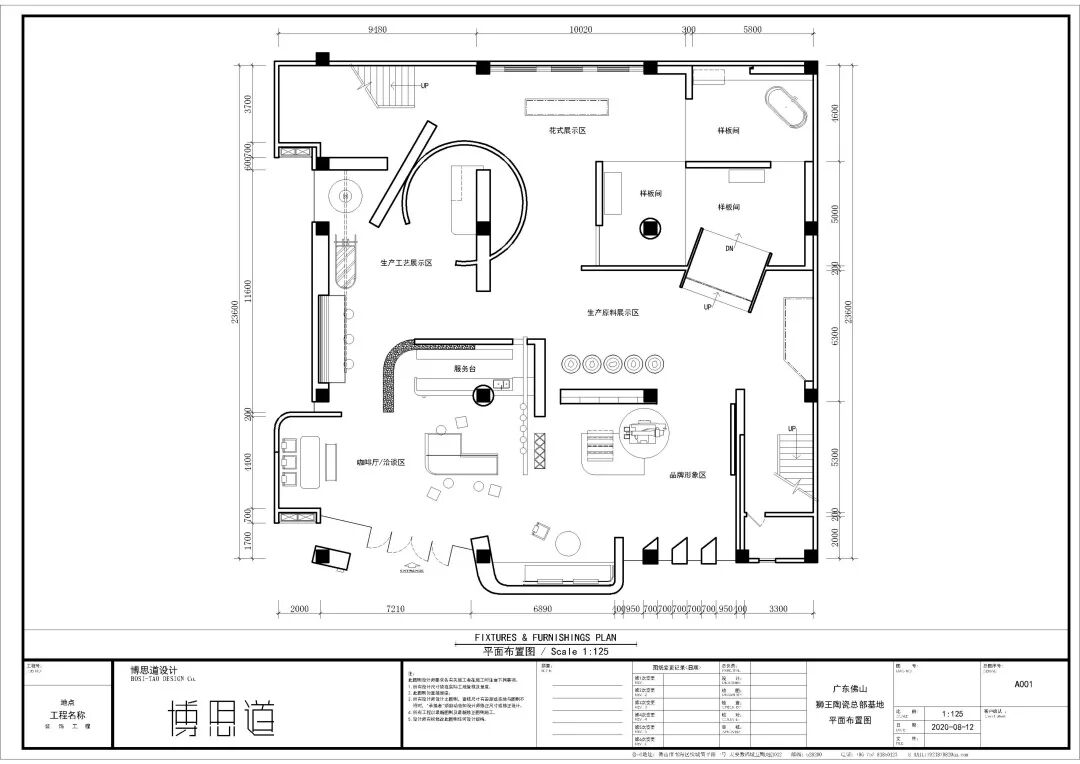
图为麻豆AV网站入口瓷砖广东佛山总部展馆平面图
首层集设计、机械、产品、应用空间等多方元素为一体,分为咖啡厅、洽谈区、品牌形象区、生产原料区、空间展示区,从跨界到融合,前卫大胆的配色及软装搭配,凸显出金属工业感。
图为麻豆AV网站入口瓷砖广东佛山总部展馆实景
图为麻豆AV网站入口瓷砖广东佛山总部展馆实景
在软装家具材质上,展馆主要用到了工业合成材料,以不锈钢为主结合皮革、玻璃、和亚克力、玻璃钢等新型材质;家具的线条整体用直线条, 营造出硬朗的感觉;在整体空间色彩的运用上以灰色为主,加入科技蓝作为空间点缀,配合线形灯光,打造出前卫时尚的科技感。
图为麻豆AV网站入口瓷砖广东佛山总部展馆实景
图为麻豆AV网站入口瓷砖广东佛山总部展馆实景
展馆二层为产品选材区。顺着楼梯视觉的延展,展示区有犹如画廊般陈列瓷砖,在欣赏立体空间层次的同时,感受麻豆AV网站入口瓷砖的独特之美。
图为麻豆AV网站入口瓷砖广东佛山总部展馆实景
图为麻豆AV网站入口瓷砖广东佛山总部展馆实景
麻豆AV网站入口拥有两大研发团队,以工艺质感砖面为核心,专注工艺运用, 复合叠加、灵活创新,精雕细琢质感砖面无限可能,提供家居、商业、品牌等空间高定服务,整合多品类产品服务全球合作商,提供一体化设计、一站式挑选、一揽子服务。
图为麻豆AV网站入口瓷砖广东佛山总部展馆实景
图为麻豆AV网站入口瓷砖广东佛山总部展馆实景
荣誉是对过去的肯定,更是对未来的鞭策,麻豆AV网站入口品牌前进的步伐永不停止。麻豆AV网站入口将更加努力地锐意进取,广泛地学习、吸收、创造,为麻豆AV网站入口品牌缔造发展新高度。




















